Diseñada con el sistema de doble junta y multicámaras, los perfiles de PVC de 70 mm. ofrecen muchas ventajas respecto a los de 60 mm. Además, esta serie ha sido especialmente diseñada para disminuir el impacto visual del marco al mínimo. Gracias a sus refuerzos especiales e interlocks de inercia, pueden fabricarse tanto ventanas como puertas correderas de grandes dimensiones, manteniendo todas las propiedades de una ventana de PVC (aislamiento térmico y acústico) y la funcionalidad de una ventana corredera.
Aperturas: corredera.
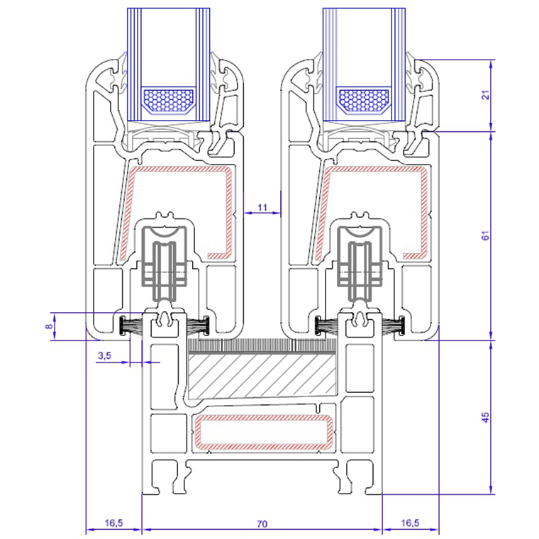
Hueco de luz para acristalar: desde 6 mm. hasta 26 mm.
Pruebas de ensayo (más información en Catálogos y Descargas):
• Transmitancia térmica: 2,8 W/m2.K
• Resistencia al aire: Clase 3
• Aislamiento acústico: 31 dB
• Resistencia al agua: Clase: 7A
• Resistencia al viento: Clase 5
Imprimir

PVC 100
Accesorios incluidosen el precio:
• Perfiles de PVC de 70 mm. con sistema de doble junta y multicámaras.
• Refuerzo con perfiles de acero galvanizado
• Acristalamiento desde 6 hasta 26 mm.
